Castle District
Private Apartment
Responsibilities: Interior Designer
Location: Budapest
Year: 2017
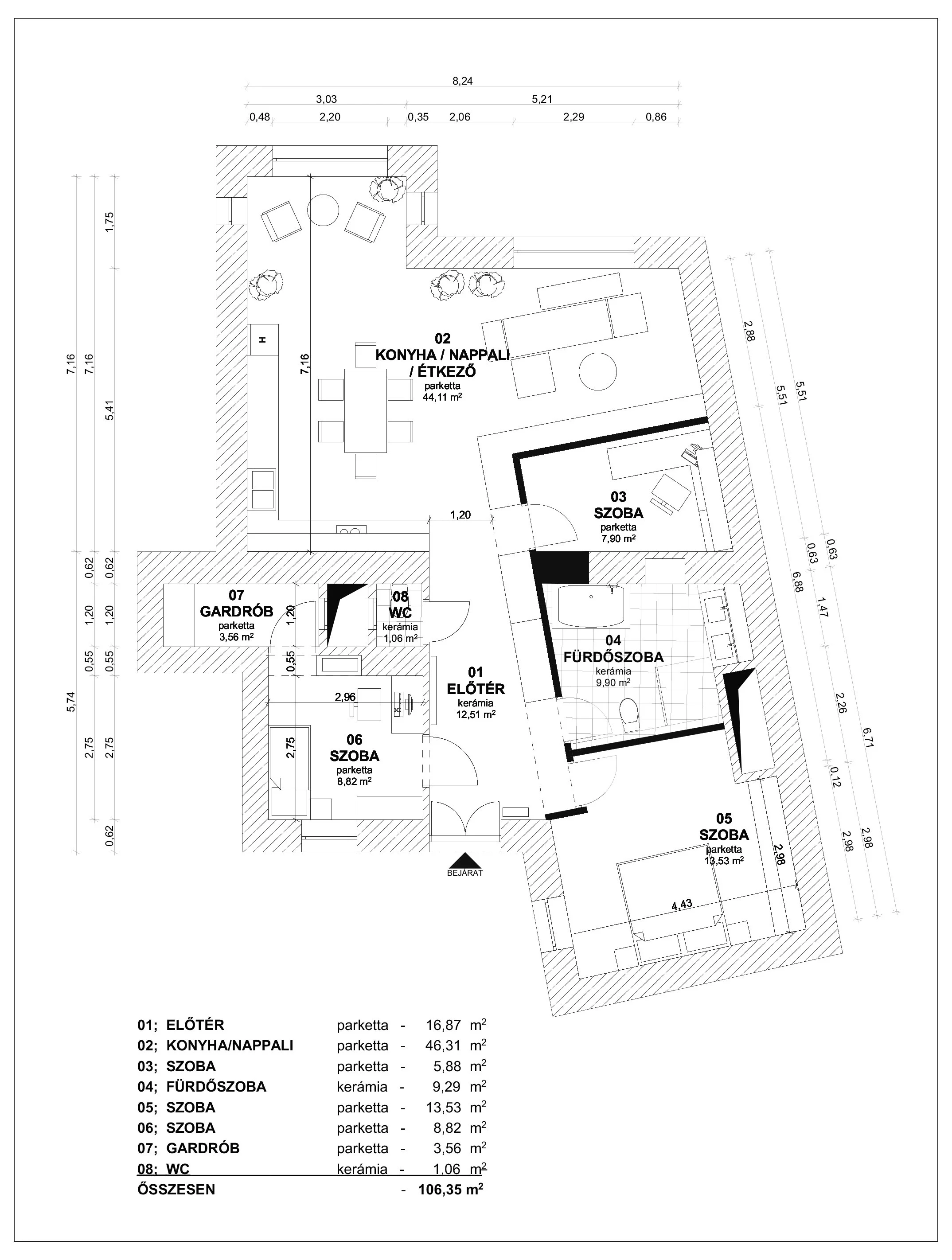
About the Project: I was assigned for a redesign of an approx. 1,000 sq. ft. apartment by an affluent family in the Castle District of Budapest. The couple was about to start a family, so in addition to the existing functions (living room, office, kitchen, dining room, bathroom, bedroom), extra storage spaces and a kid’s room had to be created.
The apartment was quite large, but due to its malfunctional floor plan it was almost completely unusable. It had two large rooms and also a smaller one, of which the two large rooms were used as a living room and office space and the smaller room as the master bedroom without any storage.
In this work, in order for the right living spaces to be available to the family, a complete floor plan modification* was required in addition to the design of the interior. 
*I would like to note here that in Hungary it is NOT typically wood but concrete that makes up the structure of the buildings, and the partition walls are mostly brick, so any “wall movement” is a quite laborious job; it requires very serious designing, preparation and execution.
Original
Version 1
Version 2
Version 3
 
                         
            
              
            
            
          
               
            
              
            
            
          
               
            
              
            
            
          
              